Die Freunde der amerikanischen Eisenbahnen innerhalb
des FREMO haben ein eigenes H0-Modulsystem entwickelt, in das die
Erfahrungen mit unseren älteren Systemen eingeflossen sind.
Die allgemeinen Empfehlungen
zu Entwurf, Material und Bau eines Moduls gelten auch für das
Modulsystem H0-USA. Auf dieser Seite werden daher nur Besonderheiten
und Abweichungen behandelt.
Thema
Es wird eine eingleisige Bahnlinie im Westen der USA im Zeitraum
von 1950 bis 1970 dargestellt, die durch typische, amerikanische
Gegenden führt.
Auf den einzelnen Modulen kann unter dem jeweiligen Thema ein beliebiges
Motiv gestaltet werden. Ein Motiv ist sorgfältig zu recherchieren,
die amerikanische Art, Dinge anzugehen, sind in die Planungen mit
einzubeziehen.
Es sollte immer ein Zusammenhang zwischen Region und
darauf verkehrenden Bahngesellschaften deutlich werden. Gesellschaften
dieser Region sind Southern Pacific, Union Pacific, Western Pacific,
Santa Fe, und ggf. Great Northern und Northern Pacific. Andere Gesellschaften
sind zu sehen, wenn die Branchline als Ausweichroute genutzt wird.
Im Westen/Südwesten der USA überwiegt ein
eher trockenes Klima. Dementsprechend ist der Untergrund je nach
gewähltem Vorbild in gelben bzw. roten Farben zu halten. Die
einheitliche Grundfarbe an den Modulenden soll vertrocknetes Grasland
darstellen. Dieser Farbton ist aus Woodland-Scenics – Material
zu mischen:
2 Teile T43 + 1 Teil T44 + 2 Teile T50
Für den Bau trockener und sandiger Stellen empfiehlt sich die
Verwendung von Sand.
Telegrafenmasten werden gern gesehen: ab ca.15 cm
vom Modulkopf beginnend, Abstand der Masten untereinander jeweils
ca. 30-35 cm, optisch gemittelt. Die Masten sollten möglichst
über zwei Quertraversen verfügen. Evtl. sind Einsteckmöglichkeit
für die Masten optional beiderseits der Strecke vorzusehen!
Auf Betriebsstellen sollten die Telegrafenmasten möglichst
auf der dem Bediener abgewandten Seite stehen. Eine Bespannung ist
zur Zeit nicht vorgesehen.
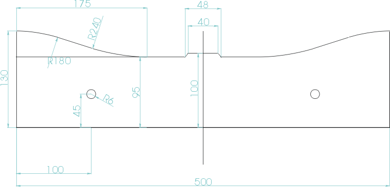
Modul-Endprofil
Das Endprofil ist 500mm breit und stellt eine
flache Talmulde dar. Durch die zur Gleisachse symmetrische Form
ergibt sich immer eine bruchlose Landschaft. Die Normhöhe
der Schienenoberkante beträgt 1300mm über Fußboden.
Die Endprofile sind 500mm breit und 130mm hoch, die Auflage
für die Schwellenunterkante ist 100mm über der Profilunterkante.
Jedes Endprofil hat zwei 12mm Löcher, deren Zentrum sich
55mm unter der Schwellenunterkante und je 150mm links und rechts
der Gleismitte befinden. Die verwendeten M8 Schrauben erlauben
kleinere Korrekturen.
Die Länge und die geometrische Form der Module zwischen
den Endprofilen ist freigestellt. |
 |

oder als .pdf
file
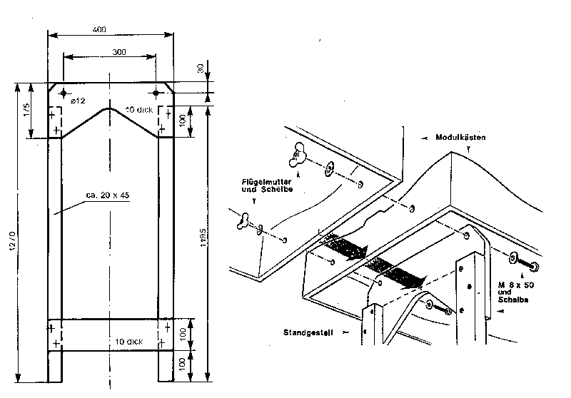
Modulfüße
Bei H0-USA wird, abweichend von meisten anderen Modulsystemen,
die Befestigung der Beine mit der Verbindung der Module gekoppelt
und auf eine Höhenverstellung verzichtet. Dieses Verfahren
spart Modulbeine ein und macht das Arrangement im aufgebauten Zustand
übersichtlicher, erschwert aber andererseits den Aufbau, da
kein Modul allein stehen kann.
Jedes Beinpaar besteht aus zwei Leisten 20*45mm, die
1195mm lang sind. Diese sind mit zwei Sperrholzplatten von 400mm
Breite miteinander verbunden. Die untere Platte beginnt 100mm über
Grund (=Leistenende) und ist 100mm hoch. Die obere ist 175mm hoch,
von denen 75mm über das obere Leistenende hinausragen. Die
Ecken dieses oberen Verbindungsbretts sind abgeschrägt/abgerundet.
In diesem befinden sich zwei 10mm Bohrlöcher 30mm vom oberen
und je 50mm vom seitlichem Rand , also 300mm voneinander entfernt.
Das gesamte Beinpaar wird, mit den Leisten nach aussen, an die Innenseite
des Übergangsprofils des ersten Modulkastens gehalten. Der
Modulkasten ruht dabei auf den Leistenköpfen. Der zweite Modulkasten
wird angehalten und dann werden durch das Verbindungsbrett und beide
Endprofile zwei entsprechend lange M8 Schrauben gesteckt und nach
genauer Ausrichtung der Modulkästen fest angezogen.
Anmerkung: diese Verknüpfung von Beinbefestigung und Modulausrichtung
funktioniert bei einem eingespielten Aufbauteam, das strikt dem
vorgegeben Plan folgen kann, gut. Die anderen Modulsysteme, insbesondere
H0-Europa haben Beinbefestigung, Höhenregulierung und Modul-(Gleis-)
ausrichtung strikt getrennt.

Gleise
Es werden Gleise mit Code70 empfohlen, Code 83 ist zugelassen. Empfohlen
werden entsprechende Produkte der Firmen Shinohara, PECO, Walthers
und Selbstbaugleise. Die Schienenprofile enden bündig außen
am Modul-Endprofil. Die Schwellen liegen direkt auf dem Holz der
Endprofile auf.
Hauptgleise: Mindestradius 1200 mm (50"), Weichen mindestens
#6
Nebengleise: Mindestradius 600 mm (24"), Weichen mindestens
#5
Schienenverbinder an den Modulenden sind nicht vorzusehen.
Zubehör für
Zubehör für Betriebsstellenmodule
Betriebsstellen mit Güterverkehr sollten unbedingt mit einer
Ablagemöglichkeit am Modulkasten versehen sein, die Wagenkarten
der sich dort befindlichen Wagen aufnehmen kann. Besser ist es,
für jedes Gleis eine separate Ablagemöglichkeit zu haben.
Darüber hinaus braucht man eine Ablagefläche für
Handregler, Ladungseinsätze und den Fahrplan.
Fahrzeuge
Alle Fahrzeuge sind mit Kadee-Kupplungen (oder kompatiblen) und
RP-25 Radsätzen auszurüsten.
Die Wagengewichte errechnen sich nach der NMRA-Empfehlung RP-20.1
Umgerechnet auf deutsche Maße hat jeder Wagen ein Grundgewicht
von 30g, sowie für jeden Zentimeter Länge weitere 6g.
Es sind nur nichtmagnetische Achsen zu verwenden, die Stahlgewichte
der Wagen sind durch andere Materialien zu ersetzen (Messing oder
Dachdeckerblei).
Rollmaterial mit altersgemäßen Betriebsspuren wird gegenüber
Fahrzeugen ohne Betriebsspuren bevorzugt eingesetzt.
Farbgebung
Die Seitenteile des Modulkastens sind in RAL 1001 beige oder einem
gleichartigen Farbton matt zu streichen. Die einheitliche Grundfarbe
der Landschaft an den Modulenden soll vertrocknetes Grasland darstellen.
Elektrik
Seit 2000 wird bei H0-USA digital im DCC-Format gefahren. Als Zentralen
dienen die Intellibox von Uhlenbrock oder der Digitrax Chief. Jede
Betriebsstelle sollte über einen eigenen Booster
gespeist werden. Erlaubt sind alle für den FREMO-Betrieb tauglichen
Booster. Wichtig ist dabei ein für diesen Booster genügend
leistungsfähiger Trafo! Hier sei noch einmal auf die DCC-Seiten
des FREMO im WWW verwiesen. Die Ansteuerung der Booster erfolgt
über das Loco-Net. Die Loksteuerung erfolgt ebenfalls über
das Loco-Net mit FRED. Als Anschlüsse für die FRED dienen
Loco-Net-Boxen oder entsprechende Buchsen.
Der elektrische Aufbau der Module für den Digitalbetrieb
ist noch einfacher gehalten als bei der Analogtechnik.
* 2 mit den Schienen der Module verbundene Kabel
(Farbmarkierung Grün) leiten den digitalen Fahrstrom von den
Booster zu den Gleisen.
* Diese zwei Kabel enden an den jeweiligen Modulübergängen
in grünen 4mm Buchsen. Die Buchsen für den Fahrstrom sollen
entsprechend der Schienenlage montiert werden.
* je zwei 50cm lange Kabel in den festgelegten Farben verbinden
die 4mm Buchsen zweier benachbarter Module.
* Zwischen zwei Boosterbezirken wird keine Verbindung der Fahrstrombuchsen
hergestellt.
Um den Aufbau zu vereinfachen und Vertauschungen zwischen
den Schienen zu vermeiden wird in der Verkabelung das sogenannte
Hetero-System eingeführt.
Anschluss der Parallelkabel (Hetero-Prinzip)

Das bedeutet, dass das in Fahrtrichtung mit der rechten
Schiene verbundene Kabel 50cm über das Modulende hinausragt
und direkt in einem Stecker endet. Das andere Kabel endet wie bisher
in einer Buchse.
Für Betriebstellen mit elektrisch betriebenen
Weichen, Signalen und Beleuchtung wird ein separater Transformator
empfohlen.
Dieser Transformator muß den einschlägigen Vorschriften
(DIN, VDE, GS usw.) entsprechen.
Die sekundären Wechselstromausgänge dieses Trafos dürfen
NIEMALS mit den Wechselstromleitungen des Moduls
(wie oben beschrieben) verbunden werden. Eine solche Verbindung
ist lebensgefährlich !
Aufgrund der Soundloks hat sich gezeigt, dass der
Strombedarf manchmal sehr hoch ist. Daher empfehlen einige, die
Querschnitte der Kabel unter dem Modul auf 1,5mm2
oder gar 2,5mm2 zu wählen. Auch die Stromzuführungen
zu den Gleisen sollten möglichst 1,5mm2 haben.
|